La Residenza Forti, nuova iniziativa proposta da Kostruire, verrà realizzata nel centro di Romagnano nel Comune di Trento, posizione che consente di raggiungere in pochi minuti la città ed allo stesso tempo godere della tranquillità del piccolo centro abitato.
La localizzazione è particolarmente favorevole in quanto permette di utilizzare comodamente anche i mezzi pubblici, vista la vicinanza della fermata dell’autobus.
L’intervento prevede la ristrutturazione completa dell’immobile già esistente e dei due appartamenti siti al piano primo e secondo; verrà inoltre realizzata una sopraelevazione che permetterà di ricavare un nuovo appartamento al piano terzo. Avremo quindi un tranquillo contesto composto da sole tre unità abitative.
Gli appartamenti sono liberi su tutti i quattro lati e la relativa superficie consente di realizzare alloggi con tre camere da letto e due bagni. Completano gli appartamenti due poggioli per unità.
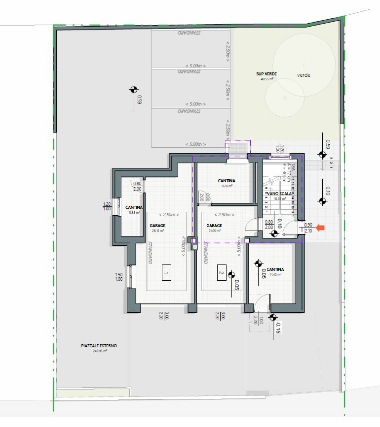
Al piano terra verranno realizzati i garage e le cantine a servizio degli appartamenti.
A fine intervento, grazie alle migliorie impiantistiche e strutturali apportate, la Residenza Forti potrà vantare la classe energetica A, garantendo un importante risparmio economico e un elevato comfort abitativo.
Sono disponibili per l’acquisto gli appartamenti al primo e terzo piano con le relative pertinenze e fino alla fine del 2024 sono previste importanti detrazioni fiscali.
Chiamaci per avere più informazioni sulla Residenza Forti, la tua nuova casa a Romagnano!












